|
Übungsaufgaben zu KNX-Grundlagen
Übung 1 Projekt mit Software
1. Projekt und Gebäudestruktur anlegen
Starten Sie die ETS 5
Wählen Sie unter “Projekte” - 
Projektdaten : Projektname „Ihr Name“
Projektnummer „Jahr“-001
Vertragsnummer 001

Öffnen Sie das Projekt und öffnen Sie unter “Arbeitsbereich” - “neues Fenster…” und legen eine neue “Gebäudestruktur” an.

Weitere Eigenschaften können nach Klick mit der Maustaste auf das neu angelegte Gebäude rechts im Eigenschaftsfenster eingestellt werden.
Wählen Sie dann Gebäudeteile hinzufügen und fügen Sie eine Etage ein.


Legen Sie auf dem gleichen Weg einen Raum Hörsaal an.
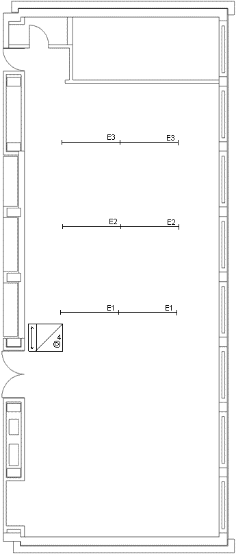
2. Aufgabenstellung Hörsaal
Die drei Lichtbandgruppen werden über einen 4-Fachaktor geschaltet.
(je nach Anlage)
|
Ausgang 1
|
=
|
Licht E1
|
|
Ausgang 2
|
=
|
Licht E2
|
|
Ausgang 3
|
=
|
Licht E3
|
|
Zum Schalten wird ein 4-fach-Taster universal verwendet.
(Jung 2094)
|
|
Taste oben Reserve
|
- - -
|
|
|
Taste oben mitte schaltet Licht E1
|
EIN / AUS
|
|
|
Taste unten mitte schaltet Licht E2
|
EIN / AUS
|
|
|
Taste unten schaltet Licht E3
|
EIN / AUS
|
|

3. Teilnehmer projektieren
Wählen Sie mit der rechten Maustaste den Hörsaal.
Wählen Sie dann, aus dem erscheinenden Menü, den Menüpunkt “hinzufügen Geräte”.
Geben Sie folgende Suchkriterien ein.

Wählen Sie aus den angezeigten Geräten das passende Gerät aus.
Starten Sie die Übernahme ins Projekt mit “Hinzufügen”.
Geben Sie folgende Suchkriterien ein.

Wählen Sie das Gerät Universal/Schalten aus.
Starten Sie die Übernahme ins Projekt mit Hinzufügen.
Schließen Sie nun dieses Fenster und Sie sehen folgende Gebäudeansicht.

durch einen Klick auf das Gerät wird rechts ein Fenster geöffnet, in dem der Teilnehmer näher beschrieben werden kann, wie z.B.

Zu empfehlen ist dabei eine Kombination “Was ist das für ein Gerät, was tut das Gerät und wo finde ich das Gerät?”
Anmerkung: An dieser Stelle sollten gleich die Parameter der Geräte an die zu realisierenden Funktionen angepasst werden. Somit kann gleich geprüft werden, ob auch wirklich die richtige Geräteapplikation ausgewählt wurde.

Durch Betätigen - “Ansicht” - “Neues Fenster öffnen” - “Gruppenadressen” wird die Gruppenübersicht geöffnet.
Jetzt müssen gemäß der Aufgabenstellung die Gruppen für die Funktion eingerichtet werden. Dabei muss für jede auszuführende Funktion eine Untergruppe angelegt werden!
Verwenden Sie als Adresse der Hauptgruppe bitte die Nummer des Koffers.

Ergebnis: 
Zunächst müssen die Kommunikationsobjekte der Geräte geöffnet werden.

Per „drag and drop“ (mit der linken Maustaste auf das Objekt drücken, Maustaste gedrückt halten, auf die Gruppenadresse ziehen und Maustaste loslassen) wird dann das erste Kommunikationsobjekt mit der zugehörigen Gruppenadresse verknüpft.

Mit den anderen Untergruppen danach ebenso verfahren.
Durch Betätigen “Ansicht” - “Neues Fenster öffnen” - “Topologie” wird die Gruppenübersicht geöffnet.
Bereich anlegen: 
(Verwenden Sie als Adresse für den Bereich die gleiche Adresse, welche die Schnittstelle hat.)
Linie anlegen: 
(Verwenden Sie als Adresse für die Linie die Nummer Ihres Koffers.)
Teilnehmer einzeln der Linie mittels „Drag and Drop“ zuweisen, bzw. den ganzen Raum mit der Linie verbinden
Kontrolle: Die Teilnehmer haben jetzt eine physikalische Adresse erhalten.(Gebäudeansicht)

Wechseln Sie nun in der Gebäudeansicht zur Registerkarte „Inbetriebnahme“.

Markieren Sie der Reihe nach die Geräte und programmieren Sie zuerst die physikalische Adresse und anschließend die Applikation (Anwendung).
Sie können des Weiteren zwischen folgenden Programmiermöglichkeiten wählen.
- Partiell (wenn nur kleine Änderungen übertragen werden sollen)
- Physikalische Adresse & Applikations-Programm
Wurde die Programmierung ohne Fehlermeldung durchgeführt kann nun die Anlage getestet werden.
Werden nachfolgend Parameter geändert, so sind NUR die Parameter neu zu übertragen, in dem man den jetzt erscheinenden Programmiermodus „Applikations-Programm“ anwählt, oder „Partiell programmieren“.
Inhaltsverzeichnis
|