|
Übungsaufgaben zu KNX-Grundlagen
Übung 4 Schaltfunktionen
Ändern Sie das vorherige Projekt wie folgt:
Zum Schalten werden ein 4-fach-Taster an der Eingangstür und ein 2-fach-Taster an der kleinen Eingangstür verwendet. Diese sollen folgende Funktionen erfüllen.
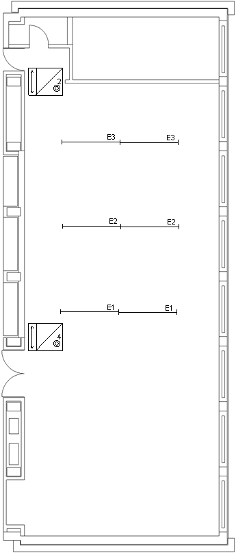
Taster Eingangstür
|
|
Taste oben alle Leuchten
|
EIN / AUS
|
|
|
Taste oben mitte schaltet Licht E1
|
EIN / AUS
|
|
|
Taste unten mitte schaltet Licht E2
|
EIN / AUS
|
|
|
Taste unten Licht E3
|
EIN / AUS
|
|
Taster kleine Eingangstür
|
|
Taste oben links alle Leuchten
|
EIN
|
|
|
Taste oben rechts schaltet Licht E1
|
UM
|
|
|
Taste unten links schaltet Licht E2
|
UM
|
|
|
Taste unten rechts Licht E3
|
UM
|
|
Hinweis: Beachten Sie, dass Sie für jede Funktion eine eigene Untergruppe anlegen müssen.
Verwenden Sie als Hauptgruppenadresse bitte die Nummer Ihres Koffers.

Inhaltsverzeichnis
|